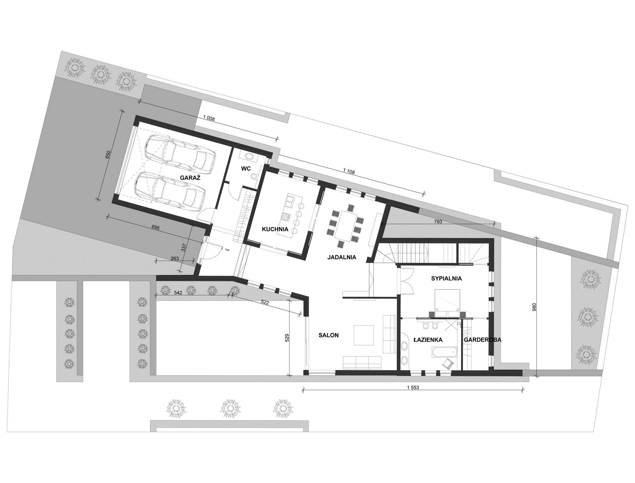
Projekt domu jednorodzinnego w Chybach
DATA REALIZACJI: 01.2008
ARCHITEKCI:
Jerzy Milewski, Anna Książkiewicz
OPIS PROJEKTU:
Projekt domu jednorodzinnego wraz zagospodarowaniem terenu w Chybach >>> Projekt koncepcyjny
DATA REALIZACJI: 01.2008
Jerzy Milewski, Anna Książkiewicz
Projekt domu jednorodzinnego wraz zagospodarowaniem terenu w Chybach >>> Projekt koncepcyjny